Área do Cliente
|
Acesse pelo celular

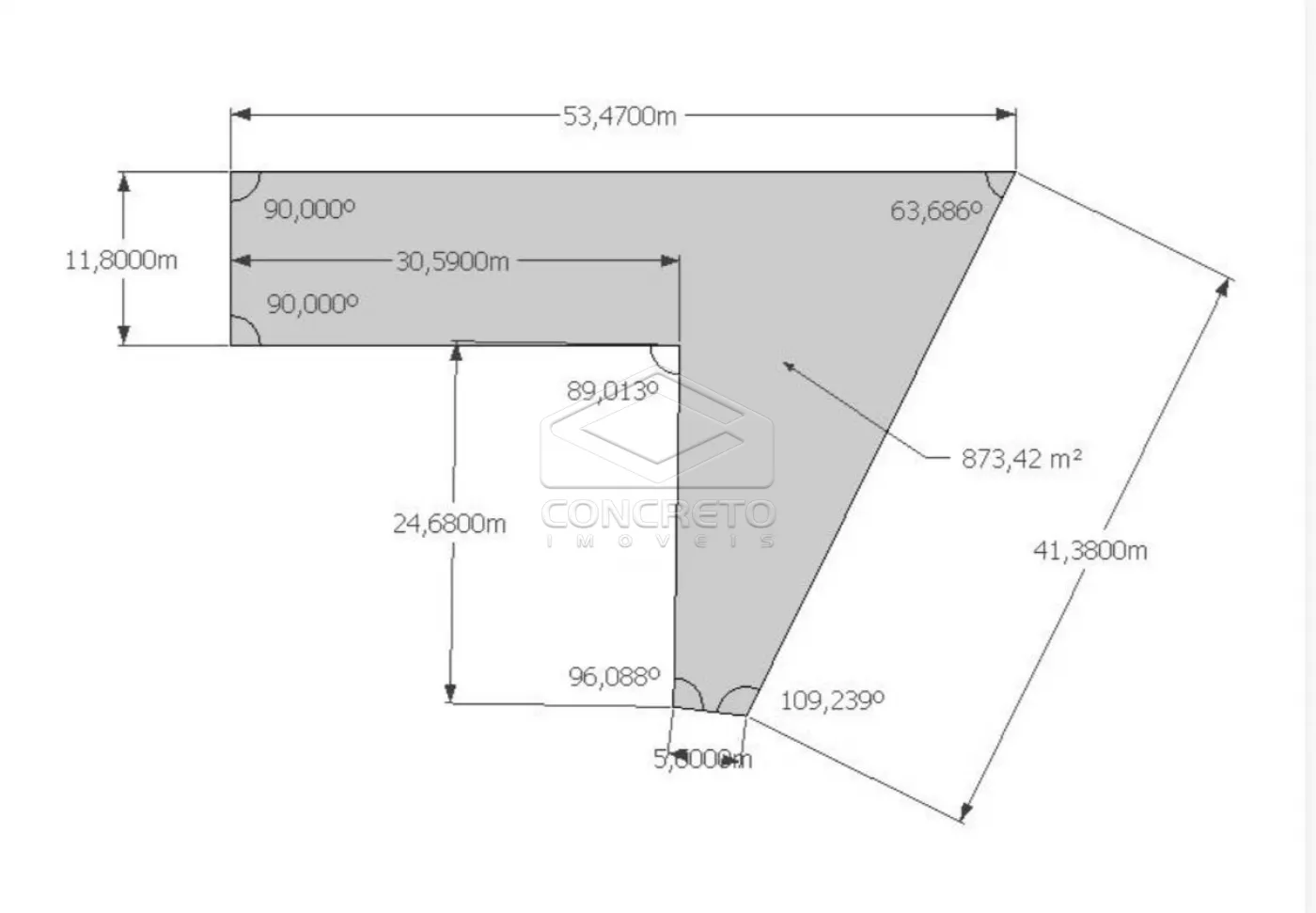
Terreno à venda com 873 m² - Vila Dutra

Terreno Padrão - Vila Dutra Residencial para Venda em Bauru

|
Compartilhe:
Total para Acessórios valores sujeitos a alteração.

Venda

(ITBI, Registro, Escritura e Certidões)
Consulte-nos
Residencial
Finalidade
111514
Referência
873.42 m²
A. Terreno
Descrição do Imóvel

Terreno à venda com 873 m², excelente oportunidade para investimento. O imóvel conta com amplo espaço e grande potencial de aproveitamento, com sugestão de projeto para construção de barracão e kitinetes, ideal para quem busca retorno com locação ou desenvolvimento comercial. Localização estratégica, a apenas 50 metros da Avenida Elias Miguel Maluf, região com grande circulação, oferecendo ótima visibilidade e valorização.
Uma excelente oportunidade para investidores ou empreendedores que buscam um terreno bem localizado e com grande potencial de uso.

Simule um Financiamento

Localização Terreno / Padrão em Bauru


Venda

(ITBI, Registro, Escritura e Certidões)
Consulte-nos

Total
600.000,00

DÚVIDAS SOBRE O IMÓVEL
PREENCHA O FORMULÁRIO


Concordo com os Termos e Privacidade
Imóveis Similares