Escolha abaixo a cidade onde deseja buscar seu imóvel.
Selecione uma Operação
-
Concreto Getúlio (J26664) (14) 2106-9500Concreto Comendador (31080J) (14) 3206-3270Concreto Araújo (31115J) (14) 3161-9600Concreto Shopping (30140J) (14) 3879-5717Concreto Belini (31359J) (14) 3234-4050Concreto Jaú (23430J) (14) 3416-9506Concreto Lençois Paulista (24733J) V (14) 3269-3939Concreto Botucatu (J26664) (14) 3514-0999Concreto Barra Bonita (14) 3604-3033Concreto Lancamentos (14) 3312-4406
-
QUEM SOMOS
-
LANÇAMENTOS
-
QUANTO VALE SEU IMÓVEL?
-
SOLICITE UM IMÓVEL
-
CONTATO
RESIDÊNCIA JD CAROLINA
Casa Padrão - Vila Carolina Residencial para Venda em Bauru
Residência ampla e arejada em ótima localização com excelente acabamento
Casa - Sobrado
Localizado em uma esquina privilegiada, ao lado da renomada USP, este sobrado é o equilíbrio perfeito entre conforto, funcionalidade e elegância. Com uma localização estratégica, você estará cercado de praticidade e acesso fácil a tudo o que precisa. A casa conta com 3 quartos acolhedores, sendo uma suíte de tirar o fôlego, proporcionando o espaço ideal para relaxar após um longo dia. Além disso, o home e o escritório oferecem a versatilidade para você trabalhar ou curtir bons momentos de lazer no seu próprio lar. A cozinha planejada é um verdadeiro convite à gastronomia, com despensa e área de serviço integradas, proporcionando organização e praticidade no dia a dia. O mezanino e a sacada oferecem vistas encantadoras, ampliando os horizontes e trazendo ainda mais leveza e luminosidade ao ambiente. Com armários embutidos, ambientes climatizados e um quintal perfeito para momentos de descontração, essa casa é o refúgio que você sempre sonhou. E para completar, a garagem comporta até 2 carros com total conforto e segurança. Não perca a chance de viver nesse charmoso sobrado. Agende sua visita e encante-se com cada detalhe desse lugar único!
Casa - Padrão
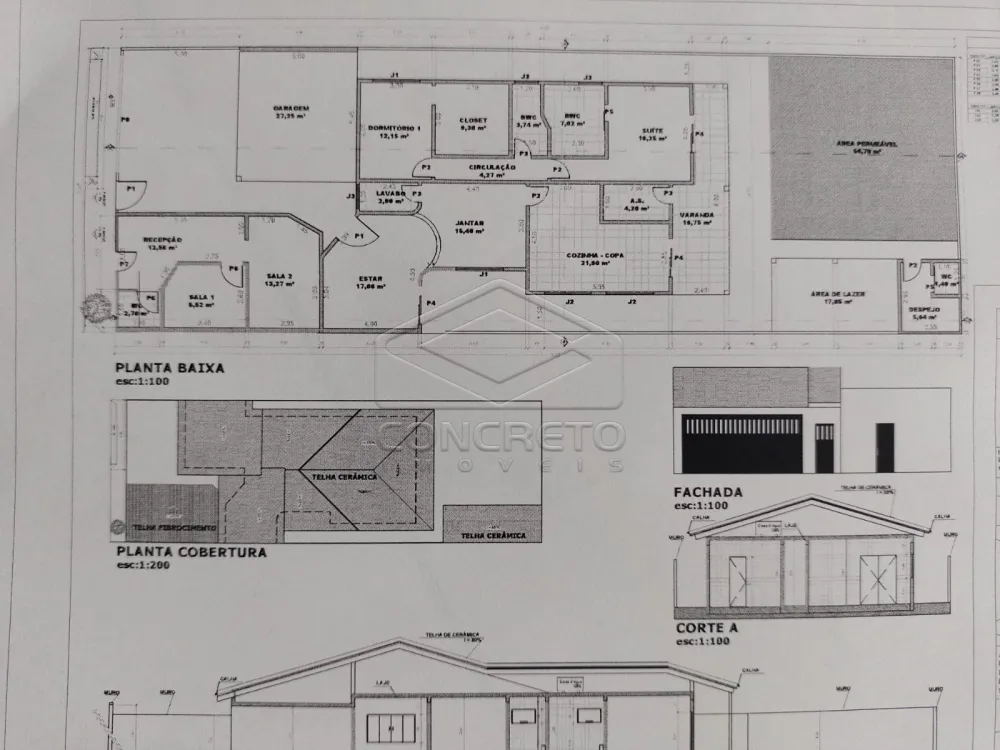
Venda de residência - NOVO PAGANI, Bauru/SP 3 suítes | 4 garagens | 360m² área total | 321,17m² área construída Excelente residência com 3 suítes com armários, sala ampla, copa, cozinha, lavanderia e quarto de despejo.
Casa - Residência
Venda de residência - VILA SANTO ANTÔNIO, Bauru/SP 2 dormitórios | 2 vagas de garagem | 472,82m² área total | 217,71m² área construída Esta residência está disponível para venda na Vila Santo Antônio, em Bauru/SP. O imóvel conta com sala ampla, cozinha, área de serviço coberta, edícula com 1 banheiro e garagem coberta para dois carros. A casa possui 2 dormitórios, perfeita para acomodar toda a família com conforto e privacidade. Os quartos são bem iluminados e arejados, proporcionando um ambiente agradável para descanso. Vale a pena conferir, agende sua visita!
Casa - Padrão
Imóvel completo em armários 04 dormitórios, sendo 3 suítes 5 banheiros Sala com 2 ambientes Cozinha completa em armários Lavanderia 03 vagas de garagem Piscina aquecida Área gourmet Monitoramento
Inglês
Espanhol
Portugues Br
Francês
Italiano