Escolha abaixo a cidade onde deseja buscar seu imóvel.
Selecione uma Operação
-
Concreto Getúlio (J26664) (14) 2106-9500Concreto Comendador (31080J) (14) 3206-3270Concreto Araújo (31115J) (14) 3161-9600Concreto Shopping (30140J) (14) 3879-5717Concreto Belini (31359J) (14) 3234-4050Concreto Jaú (23430J) (14) 3416-9506Concreto Lençois Paulista (24733J) V (14) 3269-3939Concreto Botucatu (J26664) (14) 3514-0999Concreto Barra Bonita (14) 3604-3033Concreto Lancamentos (14) 2106-9500
-
QUEM SOMOS
-
LANÇAMENTOS
-
QUANTO VALE SEU IMÓVEL?
-
SOLICITE UM IMÓVEL
-
CONTATO
-
CONHEÇA A YOONE
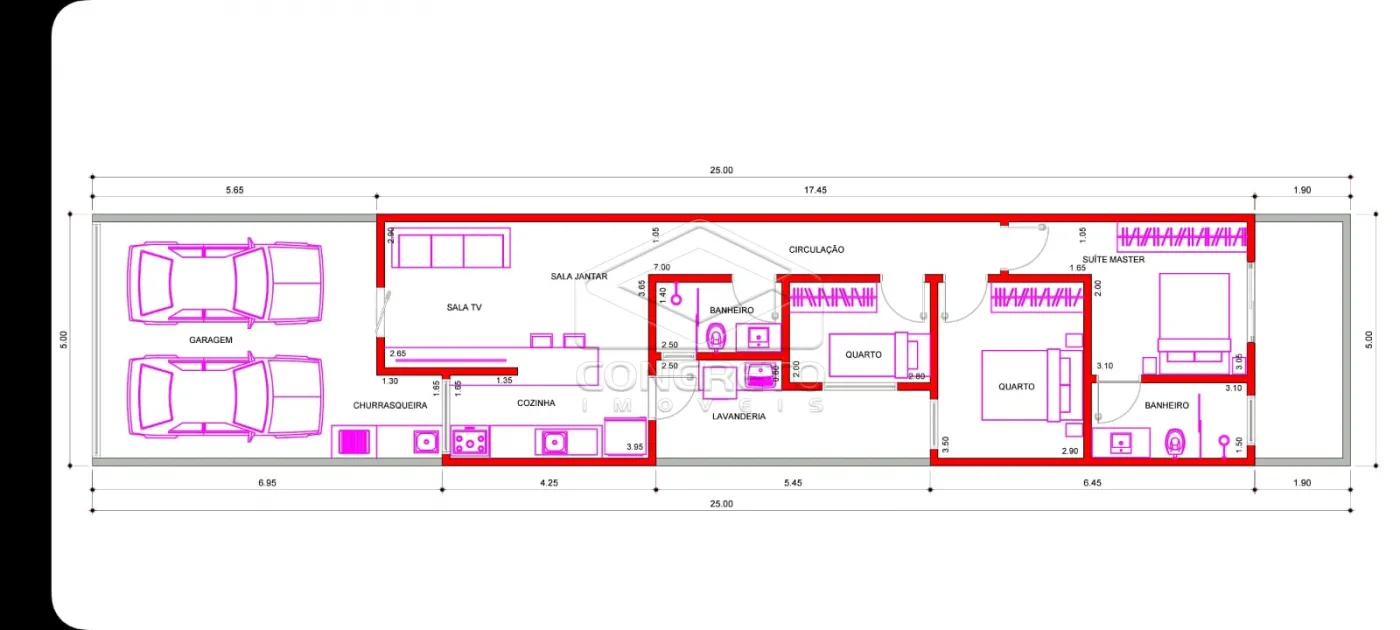
Linda casa -JD Marília
Casa Padrão - Jardim Marilia Residencial para Venda em Bauru
Ótima Localização
3 quartos
1 Suíte com jardim de inverno privativo
Lavanderia
Área de secagem de roupas
Área gourmet
Garagem para 2 carros
Portão eletrônico
Iluminação em led
Portas e janelas em alumínio
Fino acabamento
79m2 (Área privativa)
30m2 (garagem opcional valor a combinar)
Casa - Padrão
Casa espaçosa e bem distribuída, ideal para quem busca conforto, funcionalidade e um diferencial comercial. Características do imóvel: - Sala de estar - Sala de jantar - Cozinha funcional - 3 dormitórios - Banheiro social - Corredor lateral - Construção em laje, oferecendo mais segurança e durabilidade - 115 m² de área construída - 261 m² de terreno - Quintal amplo nos fundos, perfeito para lazer ou futuras ampliações - Espaço comercial na frente da casa, com banheiro, ideal para quem deseja empreender ou alugar separadamente - 1 vaga de garagem Imóvel versátil, bem localizado e com excelente potencial para atender tanto necessidades residenciais quanto comerciais. Entre em contato para mais informações ou para agendar uma visita!
Casa - Residência
Venda de residência - VISTA ALEGRE, Bauru/SP À procura de uma casa espaçosa e bem equipada no Parque Vista Alegre? Esta é a sua oportunidade! Apresentamos uma propriedade charmosa e pronta para morar, com tudo o que você precisa para viver com conforto e praticidade. Características Principais: - 3 Dormitórios amplos e arejados, sendo um deles suíte - Sala de estar acolhedora, ideal para reunir a família - Cozinha funcional com armários planejados, proporcionando organização e espaço - Banheiro social moderno e bem equipado - 2 Vagas de garagem cobertas para proteger seus veículos - Banheiro externo para maior comodidade - Quarto de despejo, garantindo espaço adicional para armazenamento *Detalhes Especiais:* Esta casa conta com armários planejados na cozinha, proporcionando praticidade e um visual moderno. Os ambientes foram pensados para oferecer conforto e funcionalidade em cada detalhe. *Localização Privilegiada:* Situada no Parque Vista Alegre, um bairro tranquilo e com excelente infraestrutura, esta casa está próxima a escolas, supermercados, farmácias e demais comércios locais. Além disso, possui fácil acesso às principais vias da região. *Pronto para Morar:* Com uma construção sólida e acabamentos de qualidade, esta casa está pronta para receber você e sua família. Basta trazer seus pertences e aproveitar o novo lar. *Agende sua Visita:* Não perca tempo! Agende agora mesmo uma visita para conhecer pessoalmente esta oportunidade única de morar bem no Parque Vista Alegre. Esta é a chance de adquirir uma casa completa e com detalhes especiais em um dos melhores bairros da região. Não deixe passar essa oportunidade!
Casa - Padrão
IMÓVEL COM 2 RESIDÊNCIAS E UM SALÃO DIMENSÃO: 12X30 O IMOVEL NECESSIDADE DE UMA REFORMA. PARTE DA CONSTRUÇÃO PRECISA SER REGULARIZADA. OTIMO PARA INVESTIDOR. SOMENTE PARTE DO IMOVEL ESTÁ A VENDA QUE É UM SALÃO DE APROXIMADAMENTE 40M2 ONDE FUNCIONAVA UMA PIZZARIA. AS MAQUINAS DA MES AINDA ESÃO NO LOCAL.
Casa - Padrão
CASA TÉRREA PARA VENDA OU LOCAÇÃO - PRÓXIMO À FACULDADE UNISAGRADO Casa ampla e bem localizada, ideal para quem busca conforto e praticidade. Características do imóvel: 3 quartos, sendo 1 suíte 2 banheiros no total Sala de estar espaçosa e bem iluminada Cozinha ampla e funcional Área de serviço Garagem coberta para 2 carros Quintal com espaço para lazer Diferenciais: Imóvel térreo, ideal para acessibilidade Ambientes bem distribuídos e arejados Localização privilegiada, próximo à Faculdade Unisagrado, supermercados, farmácias e comércios Entre em contato para mais informações ou agende uma visita!
Inglês
Espanhol
Portugues Br
Francês
Italiano