Escolha abaixo a cidade onde deseja buscar seu imóvel.
Selecione uma Operação
-
Concreto Getúlio (J26664) (14) 2106-9500Concreto Comendador (31080J) (14) 3206-3270Concreto Araújo (31115J) (14) 3161-9600Concreto Shopping (30140J) (14) 3879-5717Concreto Belini (31359J) (14) 3234-4050Concreto Jaú (23430J) (14) 3416-9506Concreto Lençois Paulista (24733J) V (14) 3269-3939Concreto Botucatu (J26664) (14) 3514-0999Concreto Barra Bonita (14) 3604-3033Concreto Lancamentos (14) 3312-4406
-
QUEM SOMOS
-
LANÇAMENTOS
-
QUANTO VALE SEU IMÓVEL?
-
SOLICITE UM IMÓVEL
-
CONTATO
-
CONHEÇA A YOONE
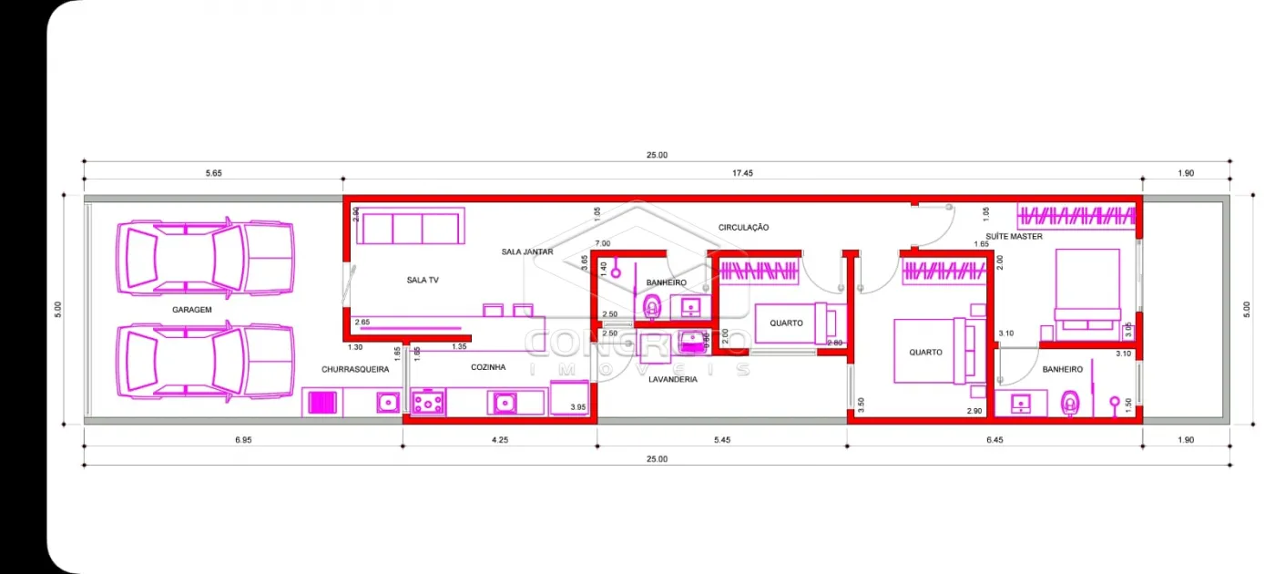
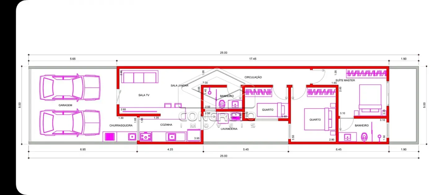
Residência em Construção Ótima localização em Frente Nações Norte
Casa Padrão - Jardim Marilia Residencial para Venda em Bauru
Imóvel será entregue em julho/25
3 quartos, suite com jardim de inverno
Sala, cozinha, area de serviço, wc social
Espaço Gourmet
Garagem para 2 carros, portão eletronico, iluminação em led
*Financia
Casa - Padrão
Linda casa à venda com excelente localização, próxima à Avenida Comendador da Silva Marta e aos melhores condomínios da cidade! A região conta com escolas, supermercados, farmácias e todo o comércio essencial para o seu dia a dia. Detalhes do imóvel: - 2 dormitórios, sendo 2 suítes - 1 lavabo - Piscina com hidromassagem - banheiro externo no quintal Casa ideal para quem busca conforto, praticidade e lazer em um só lugar!
Casa - Padrão
Localização Privilegiada Localizada na Vila Industrial, próxima à Avenida Elias Miguel Maluf, essa casa oferece fácil acesso a serviços, comércio e lazer, em uma das regiões mais bem localizadas da cidade. Características do Imóvel: Terreno: 360m² Área Construída: 234m² Garagem: Vaga para 2 carros grandes Espaço e Conforto: Perfeita para grandes famílias, com ambientes amplos e bem planejados. A casa foi construída com excelente qualidade e está pronta para oferecer conforto e funcionalidade a seus novos moradores. Diferenciais: O proprietário estuda permuta por chácara ou apartamento, tornando essa uma oportunidade ainda mais interessante. Para mais informações ou para agendar uma visita, entre em contato com a Concreto Imóveis - Unidade Araújo Leite. Seu novo lar pode estar mais perto do que você imagina.
Inglês
Espanhol
Portugues Br
Francês
Italiano